Высокий процент КПД, простота ввода в эксплуатацию, прилагающееся доступное техническое описание и приемлемая цена – это всё характеристики, которыми наделен планетарный редуктор, купить оборудование можно на нашем сайте, заполнив форму заказа и не теряя времени на поиски нужной информации. На все интересующие вопросы компетентно ответят менеджеры компании. Мотор-редукторы планетарные МПО1М-10 используются в комплексе с агрегатами и механизмами, оснащенными перемешивающими устройствами. Также они могут быть применены как составная часть приводов общепромышленного характера. На каждом этапе производства мотор-редукторы подвергаются строгому контролю качества в результате чего потребитель получает товар, который полностью соответствует нормам и требованиям международных стандартов безопасности. Особенностью планетарных моделей является то, что они представляют собой блок, состоящий из асинхронного двигателя и непосредственно самого редуктора. Как правило, комплект такого оборудования характеризуется взрывозащищенным исполнением.
Базовые условия использования планетарного мотор-редуктора:
Устройство функционирует при постоянной/переменной нагрузке (одного направления/реверсивная);
Режим работы выбирается исходя из особенностей технологического процесса: с остановками или не более 24 час/сут. подряд;
Вал мотор редуктора осуществляет вращения в обе стороны, частота не должна быть выше 1500об/мин.;
Рекомендуется использовать мотор-редуктор в неагрессивной среде;
Особенности климатич. исполнения: У - для категорий размещения 2, 3, исполнение Т - для категории 2;
Температурные показатели окружающей среды в пределах: от –40°С до +50°С.
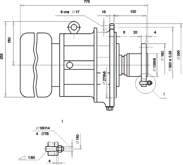
РИС 1. Габаритные и присоединительные размеры. ВК-вертикальное с опорным фланцем, выходным валом вниз и кольцевой канавкой на нём
РИС 2. Габаритные и присоединительные размеры Ф-2П - горизонтальное, с выходным валом в виде фланцевой полумуфты с встроенным зубчатым компенсатором
ТЕХНИЧЕСКИЕ ХАРАКТЕРИСТИКИ МОТОР-РЕДУКТОРА МПО1М-10
Типоразмер мотор-редуктора
Передаточное число
Частота вращения выходного вала, об/мин
Крутящий момент на выходном валу, Н. м
Электродвигатель
Масса мотор-редуктора, кг
Типоразмер
Мощность, кВт
МПО1М-10-7,34-3,0/130
7,34
130
210
АИР112М6
3,0
125
МПО1М-10-5,74-3,0/170
5,74
170
160
АИР112М6
3,0
125
МПО1М-10-5,74-5,5/170
5,74
170
290
АИР132S6
5,5
150
МПО1М-10-7,34-3,0/195
7,34
195
140
АИР100S4
3,0
105
МПО1М-10-7,34-5,5/195
7,34
195
260
АИР112М4
5,5
125
МПО1М-10-5,74-3,0/250
5,74
250
110
АИР100S4
3,0
105
МПО1М-10-5,74-5,5/250
5,74
250
205
АИР112М4
5,5
125
МПО1М-10-5,74-7,5/250
5,74
250
278
АИР132S4
7,5
150
Максимально допускаемый крутящий момент на выходном валу 430 Н.м
Максимально допускаемая радиальная консольная нагрузка на выходном валу 1500 Н
ПРИМЕР УСЛОВНОГО ОБОЗНАЧЕНИЯ ПРИ ЗАКАЗЕ:
Мотор-редуктор МПО1М-10-ВК-5,74-7,5/250-АИР132S4-У3, что означает:
Мотор-редуктор планетарный типоразмера МПО1М-10; конструктивное исполнение ВК – вертикальное с опорным фланцем, выходным валом вниз и кольцевой канавкой на нем для закладного кольца, передающего осевые усилия; передаточное отношение редукторной части – 5,74; мощность электродвигателя – 7,5 кВт; частота вращения выходного вала – 250 об/мин; тип электродвигателя – АИР132S4; климатическое исполнение – У и категория размещения – 3.